



Proyectos destacados
Puerto Lago
Un lugar para disfrutar, una excelente inversión
Puerto Lago
Un lugar para disfrutar, una excelente inversión
Descripción
Puerto Lago es un proyecto arquitectónico de gran calidad; el cuidado, la dedicación y el esmero en los detalles, son sus cualidades, generando una imagen singular y contemporánea con una construcción sólida. Un diseño al servicio del confort. Puerto Lago está ubicado en pleno Carrasco Este, en medio de la naturaleza, en un terreno espectacular que combina la tranquilidad y calidad paisajística de los lagos de Carrasco con la conectividad a los mejores servicios. Viví la naturaleza muy cerca de todo.
Leer más >Apartamentos de 1, 2 y 3 dormitorios con características y amenities de gran calidad.
Leer menosComodidades
Dormitorios: 3
Baños: 3
Edificados: 217 m²
Calefacción: Si
Garages: 1
Piscina: Si
Suite: 1
Muebles: No
Amenities
-
- Piscina exterior con deck sobre el lago.
- Acceso peatonal controlado con circuito cerrado de TV y vigilancia las 24h.
- Intercomunicador con portería y la entrada principal.
- Portones de ingreso automatizados.
- Ascensores de ultima generación.
- Box independiente para cada unidad.
Terminaciones
-
Los pisos en área de recepción serán en porcelanato de primera calidad o tipo ingeniería prefinished.
- Los pavimentos de dormitorios serán vinílico en listones símil madera color caoba.
- Los pisos de cocinas, será de porcelanato de 60x60
- Muebles de cocina prefabricados modulares.
- Carpintería exterior en aluminio (Aluminios del Uruguay) con cristales DVH opcionales.
- Losa radiante eléctrica con termostatos individuales por ambiente.
- Gas por cañería con caldereta para agua caliente.
- Previsión para instalación de alarma y canalización para TV cable.
- Previsión para instalación de lavarropa y lavavajilla.
- Previsión para aire acondicionado en el dormitorio principal y living
- Previsión para instalación de anafe a gas y horno eléctrico.
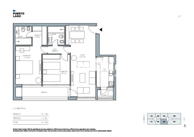
Planos
+
Ubicación
-
Unidades disponibles
