Imagen 1

Proyectos destacados

Crono

Excelente apartamento en Malvin

Crono

Excelente apartamento en Malvin

Venta desde U$S 195.000

Descripción

En pleno Corazón de Malvín. Son 11 apartamentos. Dúplex y Tríplex muy modernos. Aptos.

Leer más >

Comodidades

Dormitorios: 1

Baños: 1

Edificados: 56 m²

Calefacción: Si

Garages: 1

Muebles: No

Galería

Amenities

-

  • Jardín cerrado con acceso controlado.
  • Cocheras individuales. 
  •  Vestuario c/lockers para personal de servicio.
  • Baño de servicio.

Terminaciones

-

  • PISOS: Porcelanato pulido en livings, cocina y palier. Porcelanato esmaltado en baños. Cerámica monococción en lavaderos. Flotante de madera europeo de primera calidad en dormitorios y circulación interior.
  • ABERTURAS: Aluminio anodizado serie Mecal Plus. Triple guía en livings que permite abrir 66% del vano en cualquier sentido.
  • Protección solar a control remoto para apartamentos de 1 dormitorio (salvo dormitorio de piso 1)
  • Teléfono y CATV en todos los ambientes.
  • Conexión del circuito de CCTV a su TV o computadora.
  •  CALEFACCIÓN: individual regulable por ambiente.    
  • SEGURIDAD: Alarma c/respuesta individual instalada Servicio Prosegur. Puerta de acceso al apartamento blindada. CCTV.
  • EQUIPAMIENTO: Mueble bajo y alto en cocina. Pasaplatos c/mueble bajo.  posibilidad de cierre total de cocina. Vestidores completos. Cortinas de enrollar en dormitorios.

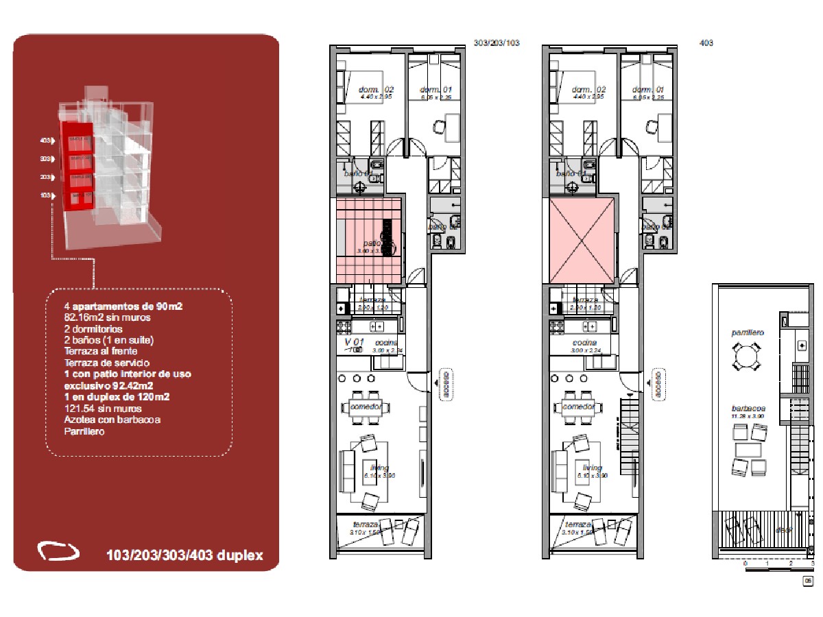
Planos

+

Ubicación

-


Contacto

Unidades disponibles

Venta dúplex de 1 dormitorio sobre Concepción del Uruguay

1
1
56

U$S 195.000

42 años
Guiando Experiencias

sobre nosotros

A la hora de emprender una inversión en bienes raíces, seleccionar un asesor inmobiliario experiente es fundamental para obtener óptimos resultados.

Nuestra vocación de servicio y profundo know-how, nos ha permitido mantener un claro liderazgo en nuestra actividad por más de 30 años, brindando nuestro clientes un asesoramiento.

Leer más >